GARCIA PAREDES / ALMAGRO
Este ático de 90 m² construidos, situado en una 6ª planta, ofrece una combinación poco habitual: altura, tranquilidad y espacios exteriores en pleno entorno urbano.
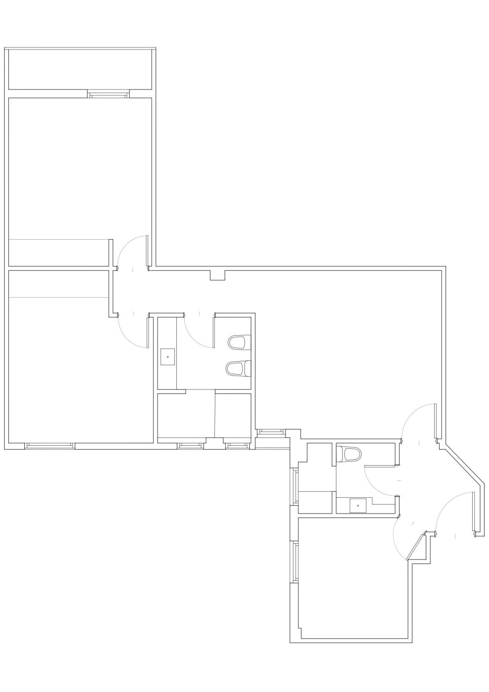
La zona de día se articula en un amplio salón–comedor con salida a balcón, un espacio luminoso y agradable que conecta con el exterior y aporta sensación de amplitud. La vivienda dispone de cocina independiente, práctica y bien diferenciada del espacio social.
En la zona de noche encontramos dos dormitorios dobles, ambos con buena capacidad de almacenaje gracias a los armarios empotrados, y dos baños completos, que aportan comodidad tanto en el uso diario como para invitados.
Uno de los grandes atractivos de la vivienda es su pequeña terraza orientada a un pulmón de manzana, un espacio íntimo y tranquilo, perfecto para desconectar sin salir de casa.
Equipada con aire acondicionado y calefacción central con contadores individualizados, garantiza confort durante todo el año.
Ubicada en una finca del año 1960, con ascensor, se trata de un ático interior que destaca precisamente por su paz, privacidad y luz bien gestionada.
REF: THH3801
Detalles
Acerca de Almagro
El barrio de Almagro, situado en el distinguido distrito de Chamberí, es uno de los rincones más elegantes y sofisticados de Madrid. Sus principales avenidas, como la Calle de Almagro y la Calle de Génova, reflejan el esplendor de la vida urbana madrileña, destacando puntos de interés como la Fundación Mapfre y el Instituto Internacional. Este barrio es conocido por su aire aristocrático y su vibrante oferta cultural. Almagro es el lugar ideal para pasear tranquilamente y descubrir sus numerosos palacetes, embajadas y galerías de arte, así como sus jardines y plazas. Sus restaurantes y cafeterías ofrecen una gastronomía refinada que va desde la cocina tradicional española hasta las propuestas más gourmet. En cada rincón de Almagro se respira una atmósfera de elegancia y exclusividad, donde la vida cotidiana se fusiona con el legado histórico y artístico de Madrid.



