Ortega y Gasset / Salamanca
Esta propiedad es un tanto especial, ya que se vende completamente demolida. Aquí, unos renders de un posible proyecto sobre como podría quedar este espacio. Hacer un hogar a tu gusto, aunque pueda dar vértigo, os prometo que es una experiencia inigualable. Y más un piso con tanto potencial, con techos altísimos y grandes ventanales, en uno de los distritos más exclusivos.
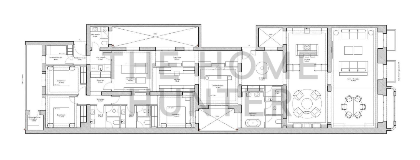
Este piso de 352m² construidos es una segunda planta. Actualmente está demolida a reformar, sólo hay un salón-comedor con salida a tres balcones. Hay dos vecinos por planta y la finca, que es clásica, cuenta con portero. Está orientado al sur. La finca es de 1915 y tiene ascensor.
Ref: THH3408
Detalles
Acerca de Recoletos
Recoletos, en el distrito de Salamanca, es un enclave de elegancia y distinción en Madrid. Sus calles, como el Paseo de Recoletos y la Calle de Serrano, son ejemplos de la grandeza de la capital. Lugares emblemáticos como el Museo Thyssen-Bornemisza y el Palacio de Linares destacan su riqueza cultural. Reconocido por sus exclusivas boutiques y restaurantes gourmet, Recoletos invita a disfrutar de una experiencia única en la capital española. Este barrio, con su ambiente refinado y sofisticado, es un destino imprescindible para quienes buscan vivir el lujo y la elegancia de Madrid. Desde sus majestuosos edificios hasta sus selectas galerías de arte, Recoletos personifica el estilo de vida cosmopolita y distinguido de la ciudad.



